Renewable Energy System Design

This project focused on designing and implementing comprehensive AC/DC systems for a renewable energy setup, ensuring efficient integration of renewable energy sources into the electrical grid. The design was carried out in collaboration with Schneider Electric, maintaining high standards of reliability and energy efficiency.

Key Deliverables:

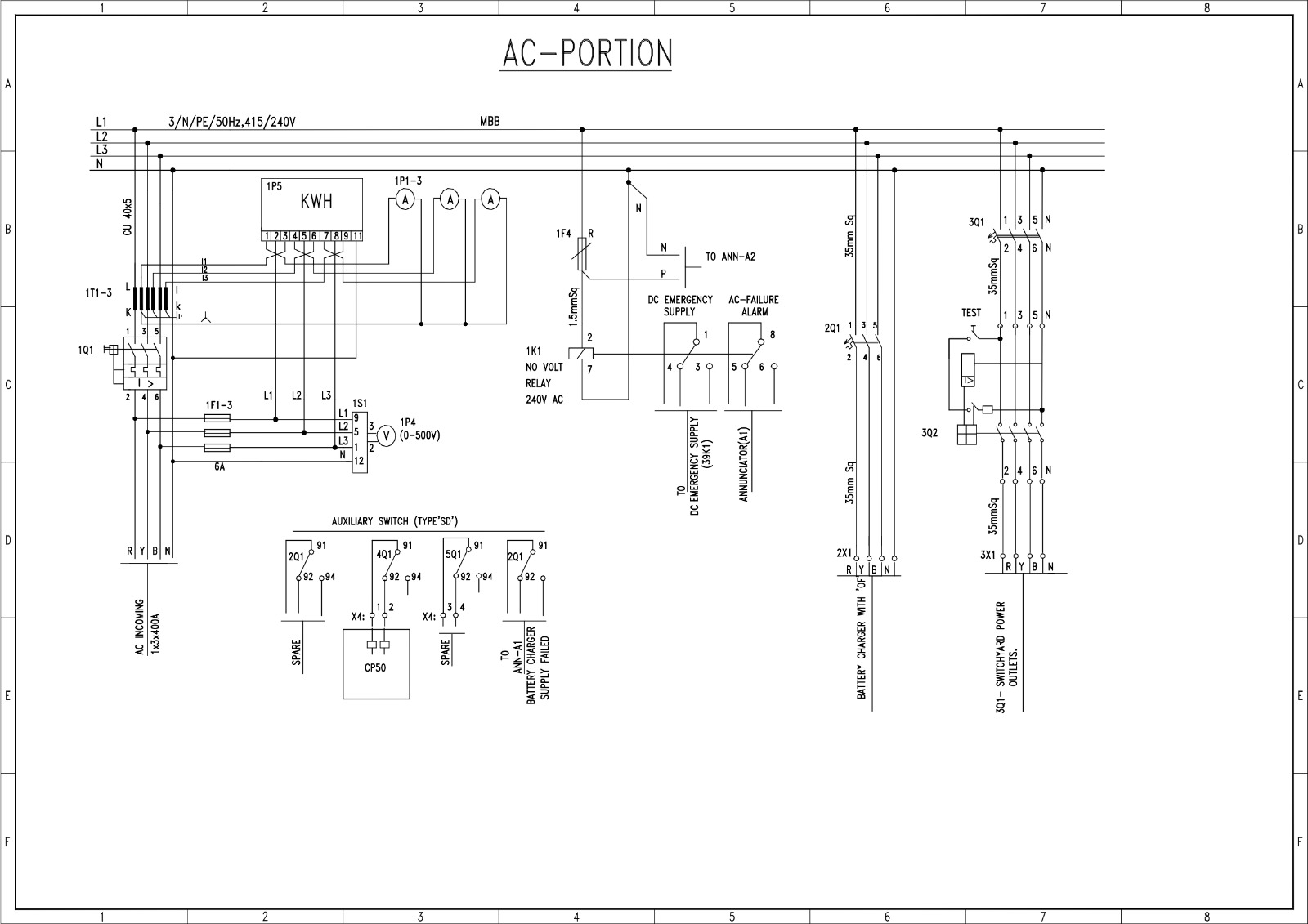
Low Voltage System SLD:

Developed a comprehensive SLD for the Low Voltage system, detailing every component, including circuit breakers, current transformers, and synchronization modules. Ensured compliance with Schneider Electric standards and IEC/NEMA requirements, offering clear visualization of power flow and system control.

Medium Voltage System SLD:

Created a detailed SLD for the Medium Voltage system, incorporating vacuum circuit breakers (VCB), protection relays, voltage transformers (VTs), and other critical components. Focused on safe and efficient power distribution with optimized interlocking mechanisms and cable routes, in line with Schneider Electric standards.

High Voltage System SLD:

Designed a precise SLD for the High Voltage system, including transformers, protection relays, and circuit breakers. Acknowledging Siemens standards, the design ensured robust protection coordination and system integrity, incorporating components such as busbars and metering systems for seamless power flow.

Outcome

The project delivered highly detailed SLDs tailored to the client’s requirements, accounting for every component within the Low, Medium, and High Voltage systems. These diagrams, created in compliance with Siemens and Schneider Electric standards, provided the foundation for seamless installation and reliable operation, ensuring long-term system stability.

Project information

  • Category Renewable Energy Systems - AC/DC Integration
  • Client Jhimpir Power – Alstom Grid