Project Overview:

This project involves the comprehensive design and installation of High Voltage (HV) Protection and Control Panels. The work includes detailed design and engineering of protection, control, and local control schematics to ensure the reliability and safety of high-voltage systems.

Acknowledgment:

These projects were completed as part of the Siemens Pakistan initiative, where I contributed significantly to high-voltage protection and control system design and execution. Special thanks to Siemens Pakistan for the opportunity to work on these impactful projects.

Electrical Design and Protection Strategy:

Overall Protection Concept Diagram: Developed a comprehensive protection concept diagram for the high-voltage system.

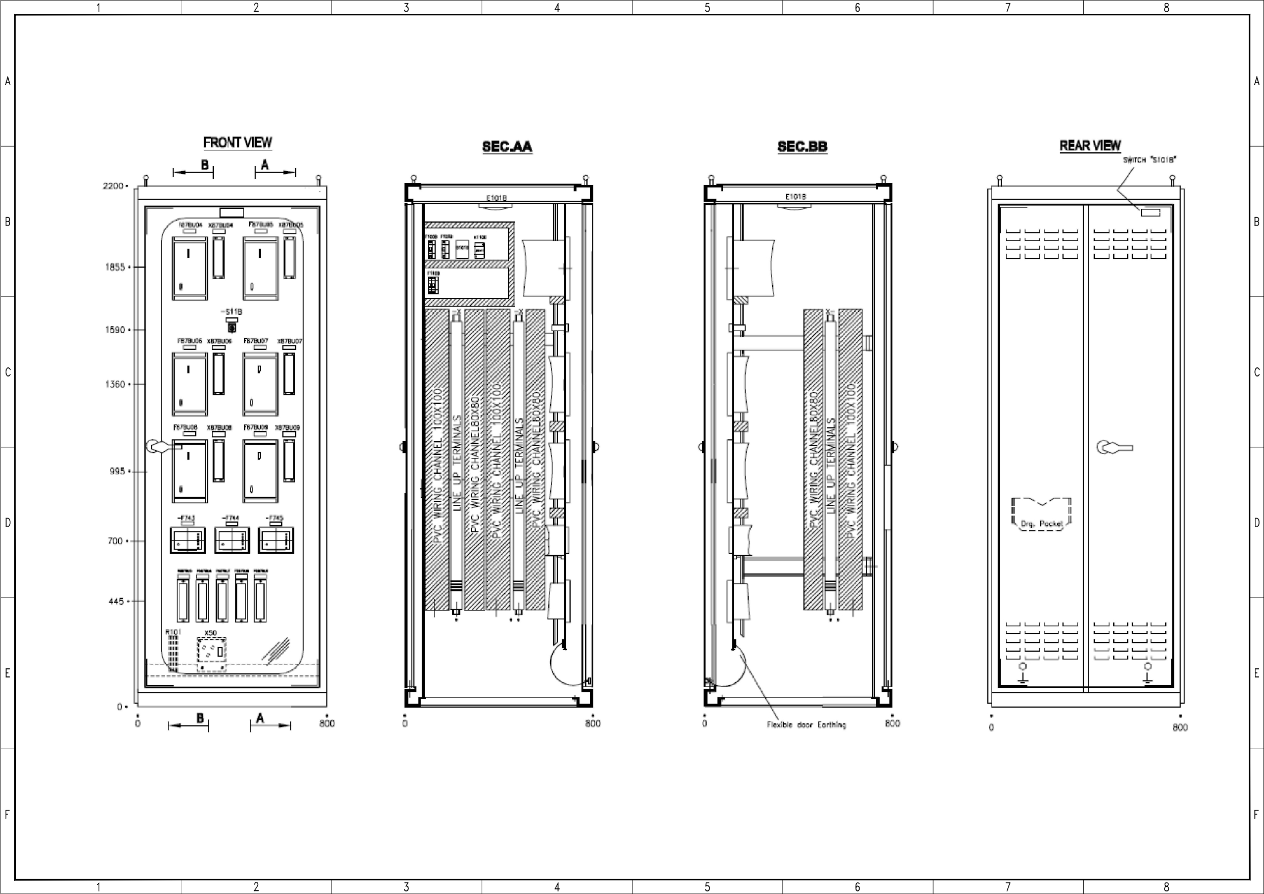
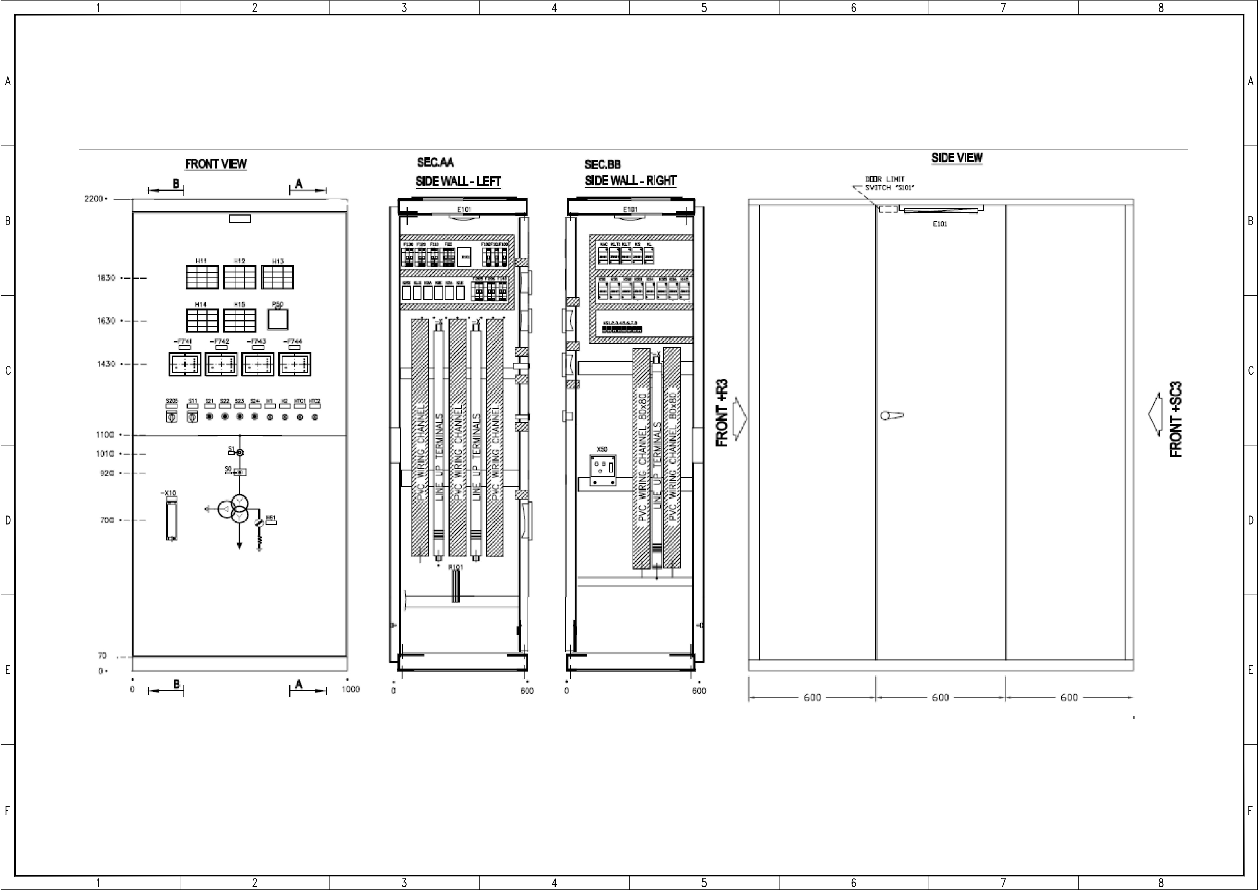
Component Selection: Selected components for the protection and control panels, ensuring optimal performance and reliability.

Relay Lists: Compiled detailed lists of relays used in the project.

Concept Diagram: Prepare Concept diagram, Trip logic, Relay list & signal list.

Schematics and Interlocking Logics: Created detailed schematics and interlocking logics for the control and protection of high voltage substations, including Medium Voltage panels.

CT/VT Calculation: Technical calculation of Current Transformer & Voltage Transformer.

Cable Schedule Preparation: Prepared comprehensive cable schedules for interfacing control and protection panels from the substation.

Termination Plan: Developed plans for the termination of cables.

Project information

  • Category High Voltage Protection & Control Design
  • Client TP-1000 (K-Electric)